(912) 492-5302 Elevated Home Group
 
Refine Search

6954 E 149th Place , Thornton, CO 80602

$575,400
  • 6954 E 149th Place , Thornton, CO 80602 Main Photo

9 Total Photos [Click to View All]

New to the Website Active
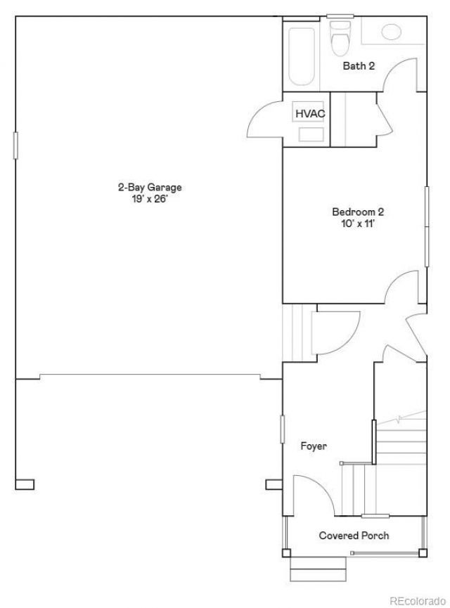
BEDS4 BATHS3 full 1 partial SQUARE FEET2,166 MLS#8686812
STATUSActive PROPERTY TYPEResidential - Single Family SUBDIVISIONParterre SCHOOLSchool District 27-J

Listing Courtesy of: Coldwell Banker Realty 56
Agency Contact: kris@thecerettogroup.com,720-939-0558
IDX logo


Property Description

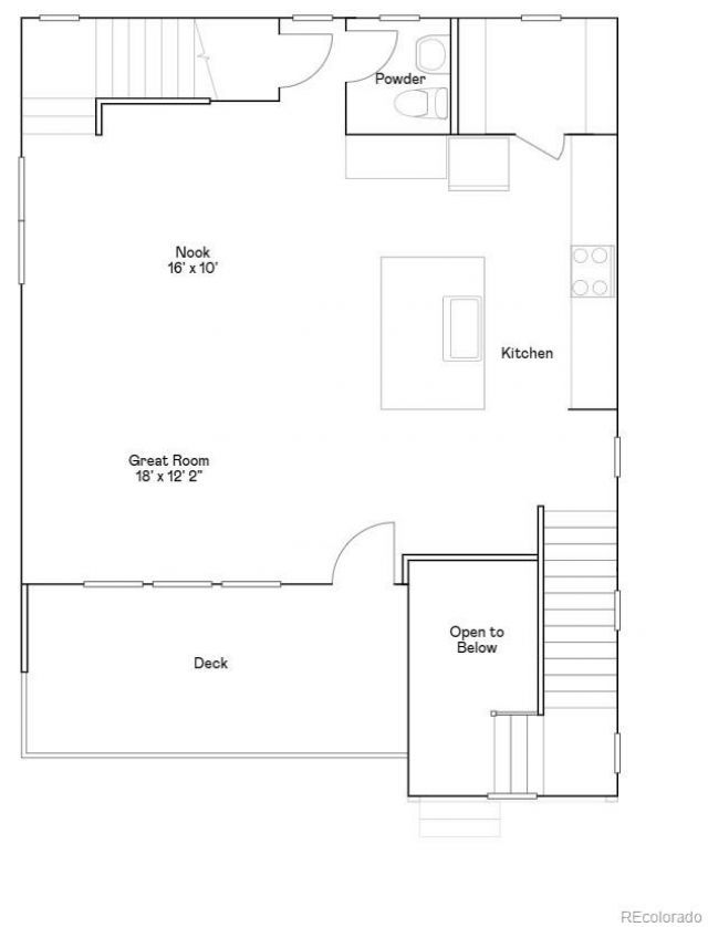
**Available with rates as low as 3.50 % when using builders preferred lender ? terms and conditions apply ? ask for details**Welcome to the Skyline Collection?where modern design meets easy, low-maintenance living. This thoughtfully crafted three-story home features a versatile first-floor bedroom with a private en-suite bath, perfect for guests, multigenerational living, or a home office. The second level is the heart of the home, showcasing a bright open-concept layout that seamlessly connects the kitchen, dining, and living areas?ideal for both entertaining and everyday living. Upstairs, youll find three spacious bedrooms, including a peaceful owners suite with a spa-inspired bath and a large walk-in closet. A conveniently located top-floor laundry room adds to the homes smart, functional design. Located near Denver Premium Outlets and Trail Winds Recreation Center, this home offers the perfect blend of convenience, comfort, and lifestyle. Estimated completion: May 2026.

6954 E 149th Place | MLS# 8686812

This single family home located at 6954 E 149th Place , Thornton, CO 80602 is currently listed for sale with an asking price of $575,400. This property was built in 2026 and has 4 bedrooms and 3 full and 1 partial baths with 2166 sq. ft. E 149th Place is located in the Parterre subdivision within the School District 27-J school district. Search Parterre real estate on www.elevatedhomegroupco.com today.

Upcoming Open Houses

Open House Saturday April 4th, 11:00am - 2:00pm
Open House Sunday April 5th, 11:00am - 2:00pm

Property Features

Property Type: Residential - Single Family
Basement: Crawl Space
Cooling: Central Air
Garage: 2 car attached
Heating: Forced Air
Lot Size: 0.07 Acres
Roof Type: Composition
Taxes: $6,105
Year Built: 2026

Amenities

Breakfast Bar
Eat-in Kitchen
Entrance Foyer
High Ceilings
High Speed Internet
In-Law Floorplan
Kitchen Island
Open Floorplan
Pantry
Primary Suite
Quartz Counters
Walk-In Closet(s)
Balcony
Rain Gutters

Feature Descriptions

Appliances: Dishwasher, Disposal, Microwave, Oven, Refrigerator
Association Amenities: Garden Area, Park, Parking, Playground, Tennis Court(s), Trail(s)
Baths 3/4: 1
Baths Full: 2
Baths Half: 1
Baths Total: 4
Days on Site: 1
Exclusions: None
Exterior: Frame, Other, Stone
Flooring: Carpet, Vinyl
HOA Fee: 145/ Monthly
Laundry: In Unit
Lot: Cul-De-Sac
Parcel#: R0219059
Patio/Porch: Covered, Deck, Front Porch
Security: Carbon Monoxide Detector(s), Smoke Detector(s)
Sewer: Public Sewer
Utilities: Cable Available, Electricity Connected, Phone Available
Water: Public
Window: Double Pane Windows

Local Schools

High School: Riverdale Ridge
Middle School: Roger Quist
Elementary School: West Ridge
School District: School District 27-J

Listed By / Shown By

Listed By

Agency Name: Coldwell Banker Realty 56
Agency Contact: kris@thecerettogroup.com,720-939-0558

Shown By

Agent Name: Elevated Home Group
Agent Phone: (912) 492-5302
Agency Title: The Cutting Edge, Realtors

IDX logo

Estimate Your Payment

Estimated Payment

$ 3,510.84 per month $2,834.27 Principal & Interest $508.75 Property Tax $167.83 Homeowner's Insurance

Change Payment Information

%
years/fixed
yearly
yearly (est.)
(Payments are an estimate and may vary by lender)

Contact Laura Hemsworth & Lisa Ramsey Today! Phone: (719) 505-5561 Email: Laura@LoansWithMilestone.com

Login to My Property Finder

Pixel